PROJET VALLEIRY

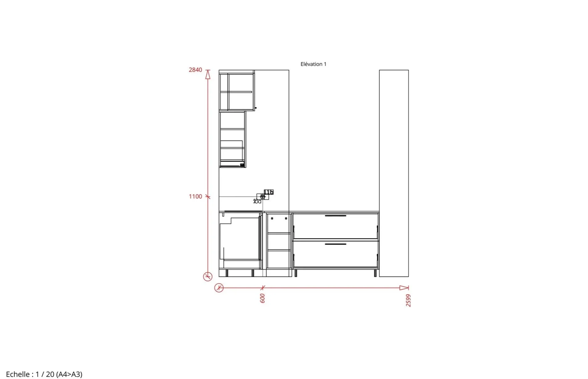
Ce projet de rénovation concerne une cuisine située dans une demeure du XIXe siècle, dont l’architecture et le cachet ont guidé l’ensemble de la conception. L’objectif était de préserver l’âme du lieu tout en apportant une lecture plus contemporaine et fonctionnelle de l’espace. Le style néoclassique chic s’exprime à travers l’utilisation de matériaux au caractère affirmé, tels que le bois foncé, le laiton brossé et la pierre naturelle. La composition met en valeur la luminosité existante et les proportions du lieu, tout en intégrant des solutions d’aménagement optimisées pour un usage quotidien. L’ensemble crée une cuisine élégante, intemporelle et parfaitement adaptée aux exigences modernes..

Précédent
Précédent

Projet Jonage

Suivant
Suivant

Projet Tunisie